0

Marcel Sembat 2 pièces loggia sur jardin

Boulogne-Billancourt (92100)
Réf : 260

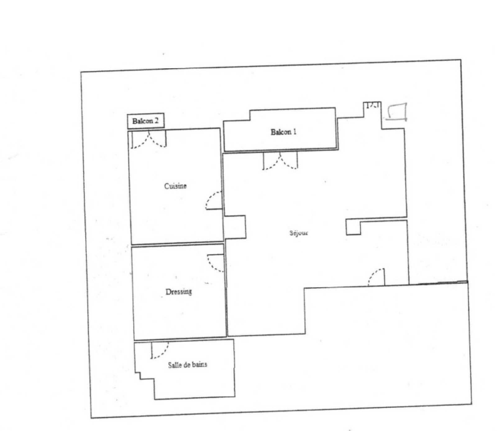
l'agence spécialiste des immeubles Construit par Fernand Pouillon vous propose .Métro Marcel Sembat village du Point du Jour , Immeuble construit par F POUILLON ( Label de construction remarquable) Noyer dans la verdure , studio transformable en 2 pièces avec loggia. proche des commerces, calme, chauffage collectif Urbain.

découvrir le bien
Prix du bien 340 000 €
Pièce(s) 2
Chambre(s) 1

Caractéristiques du bien

Caractéristiques Valeurs
Code postal 92100
Surface habitable (m²) 48,51 m²
Surface loi Carrez (m²) 48,51 m²
Nombre de chambre(s) 1
Nombre de pièces 2
Etage 2
Ascenseur OUI
Mode de chauffage Autre
Type de chauffage Autre
Format de chauffage Urbain
Balcon OUI
Cave OUI
Surface cave (m²) 3
Exposition Est
Année de construction 1960

Infos financières

Caractéristiques Valeurs
Prix de vente honoraires TTC inclus 340 000 €
Charges 170 €

Bilans énergétiques

DPE GES
Ce bien vous intéresse ?
Fieldset par défaut
Fieldset par défaut
Validation

* Champs obligatoires

Contacter l'agence
Validation
Les informations recueillies sur ce formulaire sont enregistrées dans un fichier informatisé par La Boite Immo agissant comme Sous-traitant du traitement pour la gestion de la clientèle/prospects de l'Agence / du Réseau qui reste Responsable du Traitement de vos Données personnelles.
La base légale du traitement repose sur l’intérêt légitime de l'Agence / du Réseau.
Elles sont conservées jusqu'à demande de suppression et sont destinées à l'Agence / au Réseau.
Conformément à la loi « informatique et libertés », vous pouvez exercer votre droit d'accès aux données vous concernant et les faire rectifier en contactant l'Agence / le Réseau.
Si vous estimez, après avoir contacté l'Agence / le Réseau, que vos droits « Informatique et Libertés » ne sont pas respectés, vous pouvez adresser une réclamation à la CNIL.
Nous vous informons de l’existence de la liste d'opposition au démarchage téléphonique « Bloctel », sur laquelle vous pouvez vous inscrire ici : https://www.bloctel.gouv.fr 
Dans le cadre de la protection des Données personnelles, nous vous invitons à ne pas inscrire de Données sensibles dans le champ de saisie libre
Ce site est protégé par reCAPTCHA, les Politiques de Confidentialité et les Conditions d'Utilisation de Google s'appliquent.
Ces biens peuvent vous intéresser